Vendu : Appartement 2 pièces 47 m2 à Villeneuve-Saint-Georges

Détails de l'annonce

Référence 84451662 - Mise à jour le 08/02/2026

Grand F2 de 47 M2
*** VILLENEUVE-SAINT-GEORGES EN TÊTE DU TOP 10 DES VILLES OU IL FAUT INVESTIR ***
************************
-- OPPORTUNITE DE CARRIERE A SAISIR --
Pour nos Agences de:
- MONTGERON (91230) dont l'ouverture est prévue courant octobre prochain,
- CROSNE (91560),
- PARIS 6ème Ardt. (75006)
Nous recherchons notre nouvel Agent Commercial.
Passionné(e) par l'immobilier et/ou par les relations Clients, vous avez 30, 40, 50 ans et plus et souhaitez accéder à une rémunération attractive liée à vos uniques résultats, alors devenez notre Agent et Expert Immobilier.
Contactez-nous pour un entretien sans plus tarder.
***********************
IDÉAL "INVESTISSEUR" OU "PRIMO-ACCÉDANT", Quartier Nord, "Les Graviers", Résidence avec gardien, sécurisée avec digicode et interphone, proche commodités, accès centre ville et gare RED D par autobus.
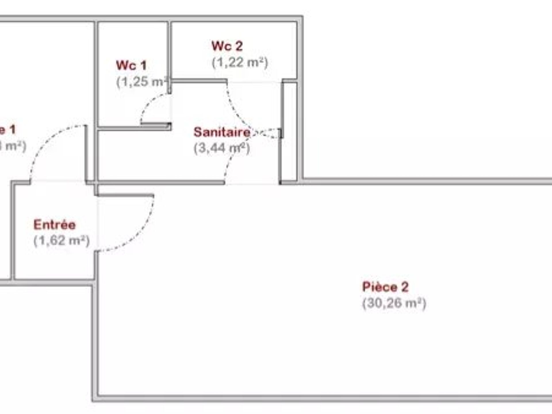
Au rez-de-chaussée, votre appartement de Type F2 de 47 M2 à rafraîchir dans sa totalité, composé d'une entrée, salle d'eau, water-closets, chambre et cuisine ouverte sur séjour de 30 m2.

Charges: 145,00 Eur/Mens. (incluant eau, chauffage, etc...)
Taxe Foncière: 600,00 Eur/An.

*** ENSEMBLE À RÉNOVER ***
***********************

Ce bien vous est présenté par:
Cathy BARROIT
Votre Conseillère en Immobilier & Patrimoine
Fixe: 01.43.82.69.34
Portable: 06.10.67.71.99
Email: agencedumarche@arthurimmo.com
Arthurimmo.com
Nos 3 Points de Vente en Ile de France (75-91-94)
- 2, Rue Henri Janin
94190 VILLENEUVE SAINT GEORGES
- 28, Avenue Jean Jaurès
91560 CROSNE
- 115, Rue du Cherche Midi
75006 PARIS

Caractéristiques de ce bien

  • Etat général
    A rafraîchir
  • Surface habitable
    47 m²
  • Nombre de pièces
    2
  • Nombre de chambres
    1
  • Nombre de salles d'eau
    1
  • Nombre de WC
    2
  • Nombre de WC séparés
    2
  • Double vitrage
    Oui
  • Travaux à prévoir
    Oui
  • Altitude
    31
  • Référence
    84451662

Bilan énergétique

Géorisques

Les informations sur les risques auxquels ce bien est exposé sont disponibles sur le site Géorisques : www.georisques.gouv.fr

Ce bien vous est proposé par

image/svg+xml
2 rue Henri Janin
94190 Villeneuve-Saint-Georges
Ajouter un commentaire (facultatif)

Annonces similaires

Vendu
9
Villeneuve-Saint-Georges 94190

Idéal Investisseur-Proche Centre-Ville, à 10' à pieds de la Gare RER D, confortable F2 de 29,50 M2, au 3ème et dernier étage, composé d'un séjour ouvert sur cuisine de 13m2, chambre de 11m2 et salle de bains/water-closets.
Trés bien agencé, sans perte de place, double vitrage.
Charges : 100,00 Eur/Mens.
Taxe Foncière: 409,00 Eur/An.
L'ensemble à rénover et à rafraîchir dans sa totalité.
Attention: Les photos "Grand Angle" ont tendance à rendre les pièces nettement plus grandes, c'est la raison pour laquelle nous indiquons les surfaces exactes des pièces principales.
Ce bien vous est présenté par:
Arthurimmo.com - Agence du Marché
Jefferson ZELLNER
Expert Immobilier Agréé Centre National de l'Expertise
Portable: 06.02.19.18.48
Fixe: 01.43.82.69.34

Vendu
Exclusivité
8
Villeneuve-Saint-Georges 94190

En exclusivité au 6, Rue de Verdun
"Idéal Investisseur" ou "Primo accédant"
Centre-Ville, à 50 mètres à, pieds de la Gare RER D, confortable F2 de 27 M2, au 1er étage d'un bel immeuble années 30' avec digicode et interphone, composé d'une Entrée, séjour de 11m2, cuisine aménagée de 4,2m2, chambre de 11m2 et salle d'eau/water-closets de 1,55m2.
Trés bien agencé, sans perte de place, double vitrage cadre PVC, chaudière individuelle GAZ (chauffage/eau chaude).
L'ensemble en très bon état d'entretien, prêt à habiter ou à louer.
--- IMPORTANT ---
Les parties communes de l'immeuble viennent d'être entièrement rénovées.

Charges : 100,00 Eur/Mens.
Taxe Foncière: 410,00 Eur/An.
Ce Bien était loué en "location Meublé 12 Mois" 750 + 100 = 850 Eur/Mens.

Ce bien vous est présenté par:
Arthurimmo.com - Agence du Marché
2, Rue Henri Janin
94190 VILLENEUVE SAINT GEORGES
Jefferson ZELLNER
Expert Immobilier Agréé Centre National de l'Expertise
Agence Du Marché-Arthurimmo.com
2, Rue Henri Janin
94190 VILLENEUVE SAINT GEORGES
Portable: 06.02.19.18.48
Fixe: 01.43.82.69.34
Email: agencedumarche@arthurimmo.com

Vendu
7
Villeneuve-Saint-Georges 94190

--- VILLENEUVE-SAINT-GEORGES EN TÊTE DU TOP 10 DES VILLES OU IL FAUT INVESTIR---

Idéal "INVESTISSEUR" ou "PRIMO ACCEDANT", en EXCLUSIVITÉ, proche Gare RER D et centre-ville, confortable appartement de Type F2 de 30 M2, composé d'une entrée, cuisine équipée, séjour, salle d'eau, douche à l'italienne et coin water-closets et une chambre.
Une cave au sous-sol vient compléter ce F2 tout confort.
Très bien agencé, sans perte de place, double vitrage cadre PVC, chauffage individuel électrique.
******************************************
(Rénovation de la chambre à effectuer suite à un dégât des eaux)
******************************************
Charges: 85 Eur/Mens. (eau comprise)
Taxe Foncière: 520 Eur/An.

Potentiel locatif après travaux: 750,00 Eur/Mens.

************************
Ce bien vous est présenté par:
Romain DAVID
Expert Immobilier Agréé Centre National de l'Expertise
Portable: 06.82.67.26.32
Fixe: 01.43.82.69.34
Email: agencedumarche@arthurimmo.com
Arthurimmo.com
Nos 3 Points de Vente en Ile de France (75-91-94)
- 2, Rue Henri Janin
94190 VILLENEUVE SAINT GEORGES
- 28, Avenue Jean Jaurès
91560 CROSNE
- 115, Rue du Cherche Midi
75006 PARIS

Soyez le premier informé !

Recevez en temps réel les annonces correspondant à votre recherche.